ГлавнаяКаталог Помещение свободного назначения — Жилой массив Задонье кв-л., 9

Жилой массив Задонье кв-л., 9, 550.00 м 2

500 000 ₽
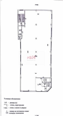
Площадь: 550.00м 2 Этаж 3 из 3
909 ₽/м 2
Белоглазова Юлия
Белоглазова Юлия
Специалист
или оставьте ваш номер,
и я перезвоню в течение 5 минут
Нажимая на кнопку, вы даете своё согласие на обработку персональных данных и соглашаетесь с политикой конфиденциальности
Сдается помещение свободного назначения 550 м² в ТЦ НИК, ЖК Грин Парк (ЖМ Задонье)
От собственника без комиссии!

Характеристика помещения и расположения:
- 3й этаж;
- есть лифт;
- все коммуникации подведены (водоснабжение, отопление, канализация);
- мощность электроэнергии - 30 кВт;
- отличное расположение в сердце Грин Парка, район продолжает застраиваться;
- хороший авто и пешеходный трафик.

Отлично подойдет под: спортивные секции, развивающий, образовательный центры, танцевальный клуб, йога-центр.

По всем вопросам обращаться к Белоглазовой Юлии.



Арт. 33456335
Расположение

Жилой массив Задонье кв-л., 9

Похожие объекты

Посмотреть другие объявления в этой категории